Инвестиционный проект в Великобритании: Строительство жилого комплекса на 122 дома в The Street, Little Clacton, Clacton-On-Sea – Англия
Предлагаем вашему вниманию привлекательный инвестиционный проект — строительство жилого комплекса из 98 домов в престижном районе Weeley в Little Clacton, расположенном в графстве Эссекс, Восточная Англия. Этот объект фокусируется на полном цикле девелопмента: от приобретения участка с полным разрешением на планировку до завершения строительства и последующей продажи или сдачи в аренду готовых объектов. В настоящее время подана предварительная заявка на увеличение до 122 единиц, что заменит некоторые крупные дома на двух- и трехспальные. Это делает проект отличной возможностью для инвесторов, ориентированных на рынок жилой недвижимости в Великобритании, с выдающимся потенциалом возврата инвестиций.
Проект расположен в полу-сельской местности на The Street, в высоко востребованном Weeley, недалеко от морского побережья. Это спокойное место сочетает в себе красоту природы с удобным доступом к инфраструктуре. Weeley находится примерно в 4 милях (около 6 км) от Clacton-on-Sea, в 7 милях (около 11 км) от Frinton-on-Sea, в 10-12 милях (около 16-19 км) от крупного города Colchester, в 20 милях (около 32 км) от Ipswich и в примерно 60-70 милях (около 97-113 км) от Лондона. Такая локация обеспечивает баланс между уединением и близостью к городским центрам, с удобным транспортным сообщением по основным дорогам, таким как A133 и B1441, и железнодорожным станциям Weeley и Thorpe-Le-Soken.
Ключевые характеристики
- Тип проекта: Строительство жилого комплекса.
- Разрешение на планировку: Полное разрешение для 98 домов; pre-app для 122.
- Расположение: Высоко востребованное Weeley в Little Clacton.
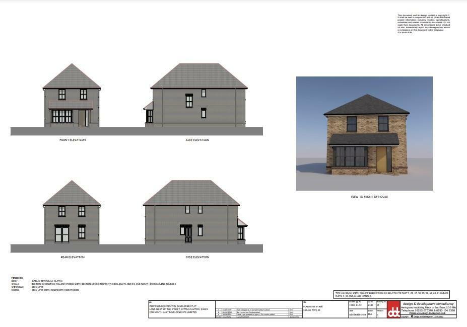
- Близость к транспорту: Рядом с Weeley и Thorpe-Le-Soken train stations.
- Особенности: Близко к морскому побережью; полу-сельская локация.
- Потенциал: Выдающийся возврат инвестиций; выгодные S106 условия.
Подробное описание
Проект включает возведение 98 единиц жилья, включая дома и бунгало с тремя, четырьмя и пятью спальнями, с возможностью расширения до 122 единиц за счет добавления двух- и трехспальных домов. Участок предлагает разработчикам уникальную возможность создать исключительное сообщество в живописной обстановке, окруженной открытыми полями. Благодаря своему расположению в Weeley Heath, проект пользуется высоким спросом среди тех, кто ищет комфорт в полу-сельской зоне с удобным доступом к морю и городским удобствам.
В самом Weeley имеются базовые удобства: продуктовый магазин (convenience store, такой как Co-op), пекарня, садовый центр. Для отдыха и общения доступны пабы и рестораны, включая The Black Boy pub and restaurant, Cherry Tree Inn, Carriers Arms, The Queens Head, The Bear Inn, Bowling Green Pub, Lakeside Tavern. Также здесь есть Village Hall для социальных событий, встреч и мероприятий. Близлежащий парк с зип-лайном и игровыми полями, а также природные зоны для прогулок. Для образования в Weeley расположена Weeley St Andrew’s CofE Primary School, а в соседнем Little Clacton — Compass Community School Essex (специализированная школа для 11-17 лет).
Для более широкого спектра услуг жители обращаются в соседние населенные пункты. В Clacton-on-Sea (4 мили) доступны супермаркеты, высокие улицы с брендами, независимые бутики, кофе-шопы, рестораны, развлечения, включая Pleasure Pier, arcades, театры, гольф-клуб и приморские прогулки. В Frinton-on-Sea (7 миль) — дополнительные магазины и тихая атмосфера. Colchester (10-12 миль) предлагает полный набор городских удобств, включая школы, медицинские центры и шопинг. Транспортная инфраструктура включает железнодорожные станции Weeley (соединения до Colchester за 25 мин, Chelmsford за час, Лондон за 90 мин) и Thorpe-Le-Soken, автобусные маршруты к соседним районам. Большинство жителей предпочитают личный транспорт для ежедневных поездок.
Инвестиционный проект предполагает создание современного жилого комплекса, который гармонично впишется в окружающую среду. Фокус на полном цикле: от подготовки участка и строительства до последующей продажи или сдачи в аренду. Это подчеркивает потенциал прибыли, учитывая растущий интерес к недвижимости в прибрежных и пригородных районах Великобритании.
Информация о планировке
Полное разрешение на планировку выдано Советом района Tendring (Tendring District Council) под референсным номером: (предоставим по запросу). Предварительная заявка на увеличение до 122 единиц в процессе. Дополнительная информация и детали S106 доступны по запросу. Это обеспечивает беспрепятственный старт работ и минимизирует риски для инвесторов.
Для получения дополнительной информации, пожалуйста, свяжитесь с нашими специалистами. Этот проект — идеальный вариант для портфеля инвестиций в сфере строительства и недвижимости, сочетающий стабильность и потенциал роста капитала.







