Инвестиции в Недвижимость Великобритании
- Расчет возврата инвестиций
- Разработка стратегии выхода и закрытия инвестиционного портфеля (продажа объекта по завершении строительства, 5-10 летний hold-to-let период и т.д.)
- Поиск земельных участков под застройку
- Организация процесса проектирования
- Сопровождение проекта на всех этапах до получения разрешения на строительные работы
- Строительство и сдача в эксплуатацию
- Полная меблировка и подготовка к сдаче в аренду
- Поиск арендаторов и гарантированная сдача готового здания/дома в аренду с заключением контракта на обслуживание
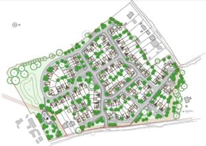
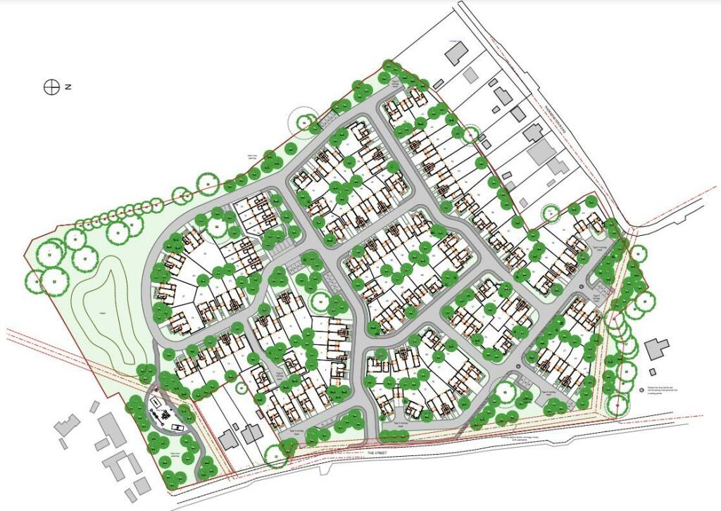
Доступные на данный момент инвестиционные проекты в Великобритании - Новое строительство домов
Для получения детальной информации по инвестированию в недвижимость Великобритании - свяжитесь с нами прямо сейчас!
Проекты с быстрой окупаемостью с бюджетом 70.000-140.000 £
Для получения детальной информации по мало-бюджетным проектам свяжитесь с нами прямо сейчас!















